楼盘地址:天池山 建筑面积:143平米
房屋户型:四居室 装修风格:欧式风格
装修类型:全包 装修造价:25万
施工工期:5个月 电话:13657874646
风格定位:本案欧式风格,欧洲文化拥有着丰富的艺术底蕴和文化素养,开放、创新的设计理念及其华丽尊贵的姿容一直以来颇受众人喜爱与追求。无论是家具还是配饰均以其优雅、唯美的姿态,平和而富有内涵的气韵,描绘出居室主人高雅、尊贵的身份。整个设计方案的主色调为暖色,金色及木制品,使色彩看起来明亮、大方。少量的拱形造型的使用使欧式风格的特点得到明显的体现。用轻快纤细的曲线装饰,效果典雅、亲切。整个空间给人以开放、宽容的非凡气度,让人丝毫不显局促。

天池山143平米欧式风格装修效果图——客厅全景

天池山143平米欧式风格装修效果图——餐厅全景

天池山143平米欧式风格装修效果图——卧室

天池山143平米欧式风格装修效果图——书房

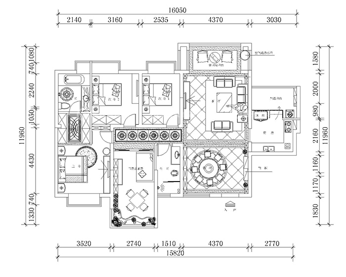
天池山143平米欧式风格装修效果图——平面布置图